Casa a schiera a Osteria
UBICAZIONE
Osteria (RA)
ANNO
2008
PROGETTO
Progetto, concorso di idee






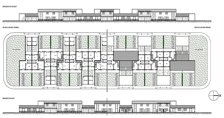
Partecipazione ad un concorso di idee bandito dalla Facoltà di Architettura di Firenze che ha come oggetto la realizzazione di edifici residenziali con tipologia a schiera in località Osteria (Ravenna).
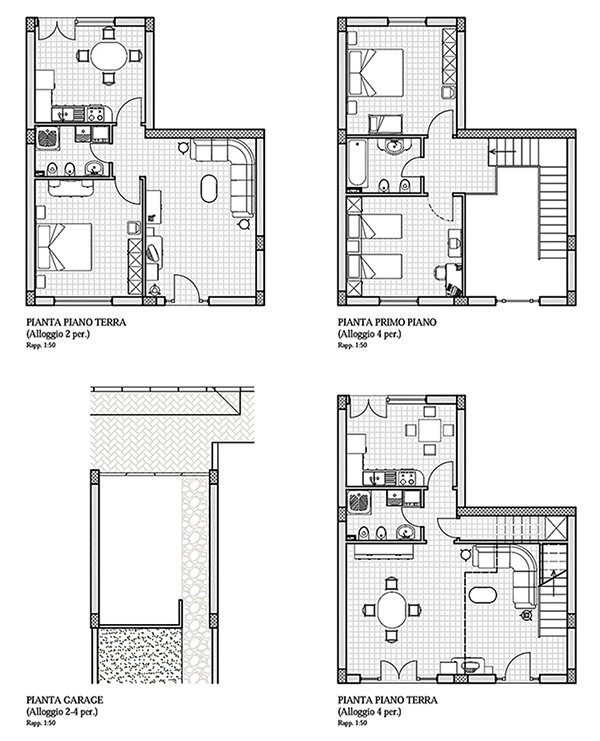
Si tratta di progettare un complesso residenziale avente alloggi differenti: a due piani per quattro persone, e alloggi ad un unico piano per due persone.
Punto di partenza del progetto è stato adottare per gli alloggi una forma ad "L", con dimensioni e superficie uguale per entrambe le tipologie, e articolarle con una struttura geometrica ad incastro. Infatti gli alloggi si differenziano solo l'aggiunta di un piano negli alloggi per quattro persone, quindi la disposizione degli interni dei vari alloggi è sempre simile, zona giorno al piano terra e zona notte al primo piano per gli alloggi per quattro persone, mentre quello per due persone è composto dalla zona giorno simile a quello precedente, con l'aggiunte di una camera da letto.
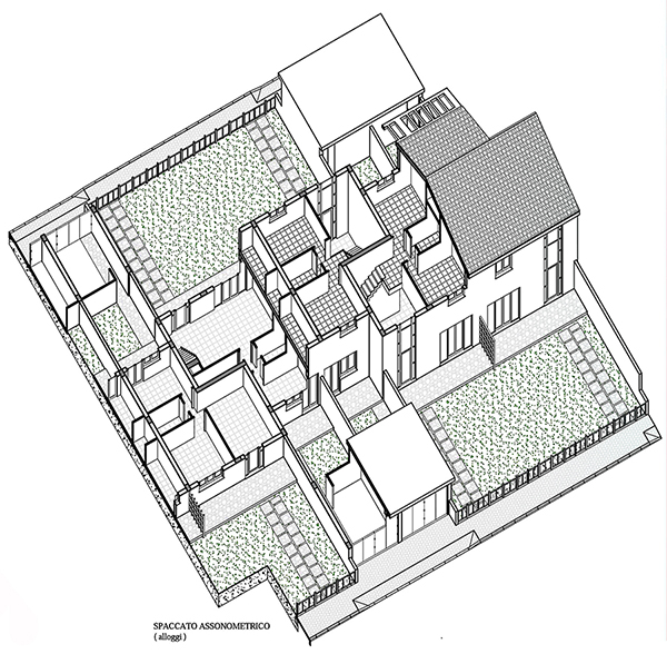
Per estendere la geometria di incastro anche al prospetto, ho
avanzato in modo alternato le facciate dei blocchi di alloggio, creando un
gioco di ombre.